Gustav-Adolf-Gedenkstätte

Lützen – Wettbewerb, Neubau Ausstellungsgebäude / Besucherzentrum.

 

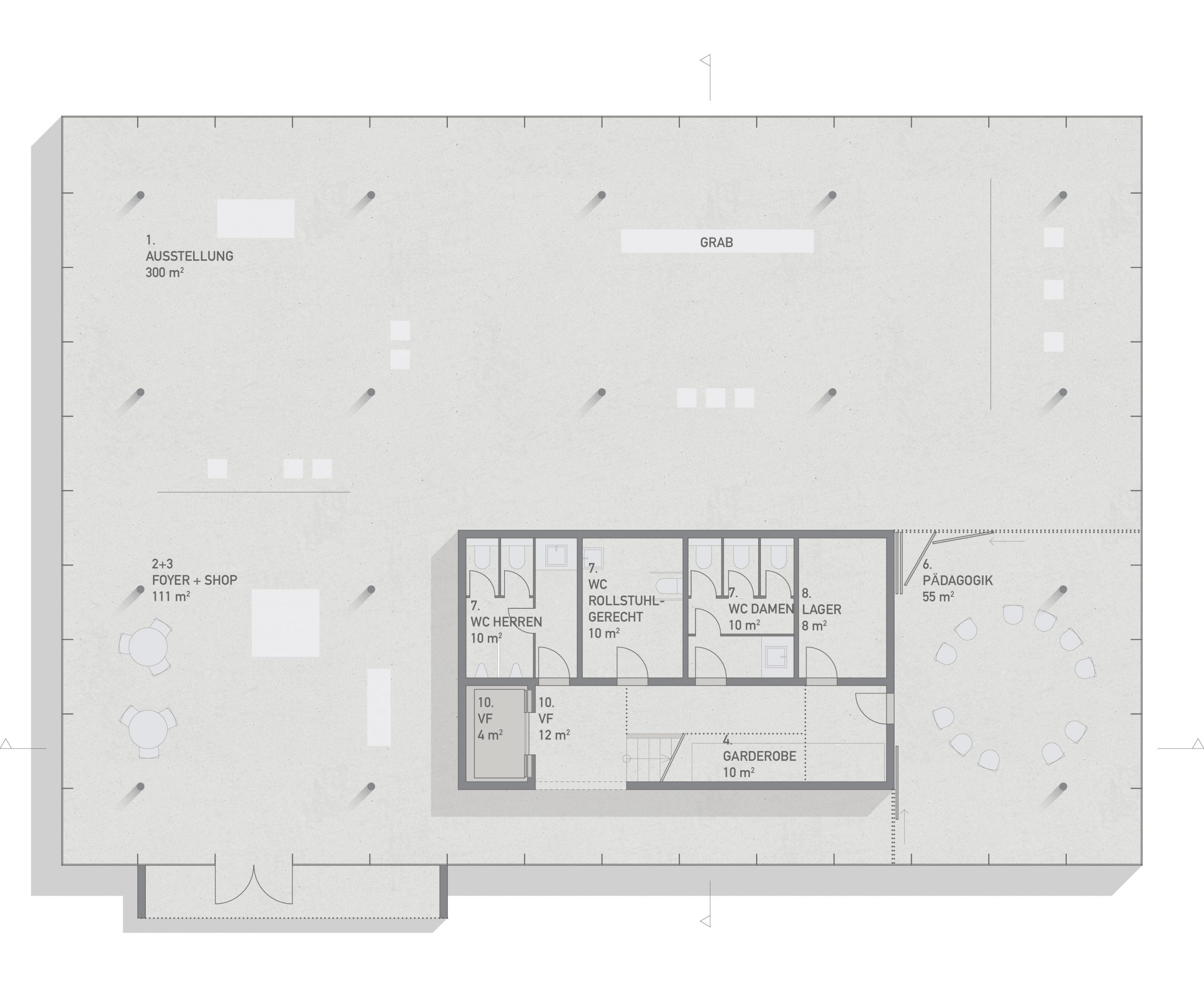
1632 fand eine entscheidende Schlacht des 30jährigen Kriegs in Lützen statt, in der der schwedische König Gustav Adolph gestorben ist. Genau am Ort der Schlacht ist eine Gedenkstätte entstanden mit einem heterogenen Ensemble von Gebäuden. Nun soll das Areal neu geordnet und mit einem neuen Ausstellungsgebäude ergänzt werden. Das Areal liegt an einer hist. Landstrasse, die genau die Mittellinie der Schlachtformationen gebildet hat. Der Entwurf nimmt entscheidende Elemente der Schlacht auf: am Tag der Schlacht herrschte dichter Nebel, das wird mit einer großteils opaken Fassade umgesetzt. Die Schlacht war unglaublich blutig, es soll auch ein Massengrab ausgestellt werden, also versucht der Entwurf ein würdiger Informations- und Gedenkraum zu sein, unpathetisch, auf jeden Fall kein unreflektierter „Aussichtsort“.

Datum

01/2016