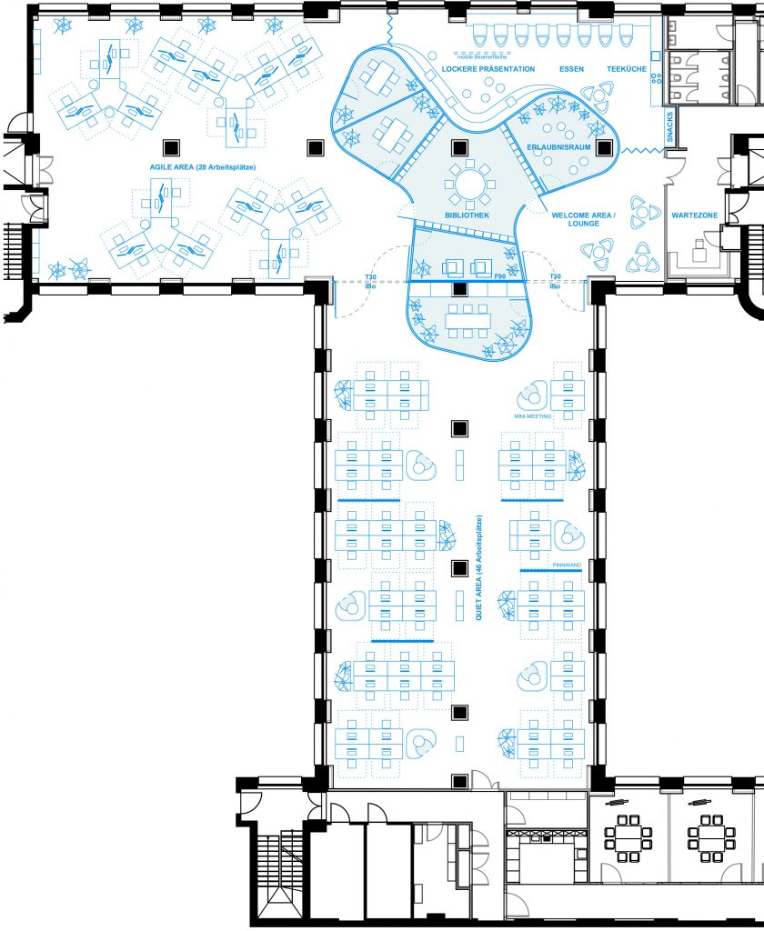
Propeller Berlin

 

Berlin – Innenraum-Umgestaltung eines Großraumbüros zu einem Co-Working-Space.

 

Mit: Orange Council, Freeters