Serieller Wohnungsbau – Nachverdichtung ehemaliges Kasernengelände

Kassel – Wettbewerb im Rahmen des GDW2-Rahmenvertrags für modularen Wohnungsbau.

 

In Zusammenarbeit mit Lukas Lang Building Technologies (LLBT).
Visualisierung: darstellungsart.

 

Das Areal der ehemaligen Jägerkaserne in Kassel wird mit Wohnungsbau nachverdichtet. Der Innenbereich des Kasernengeländes soll nach dem Rückbau der aktuell dort aufgebauten Ausweichspielstätte für das Staatstheater Kassel mit Wohnungsbau nachverdichtet werden.

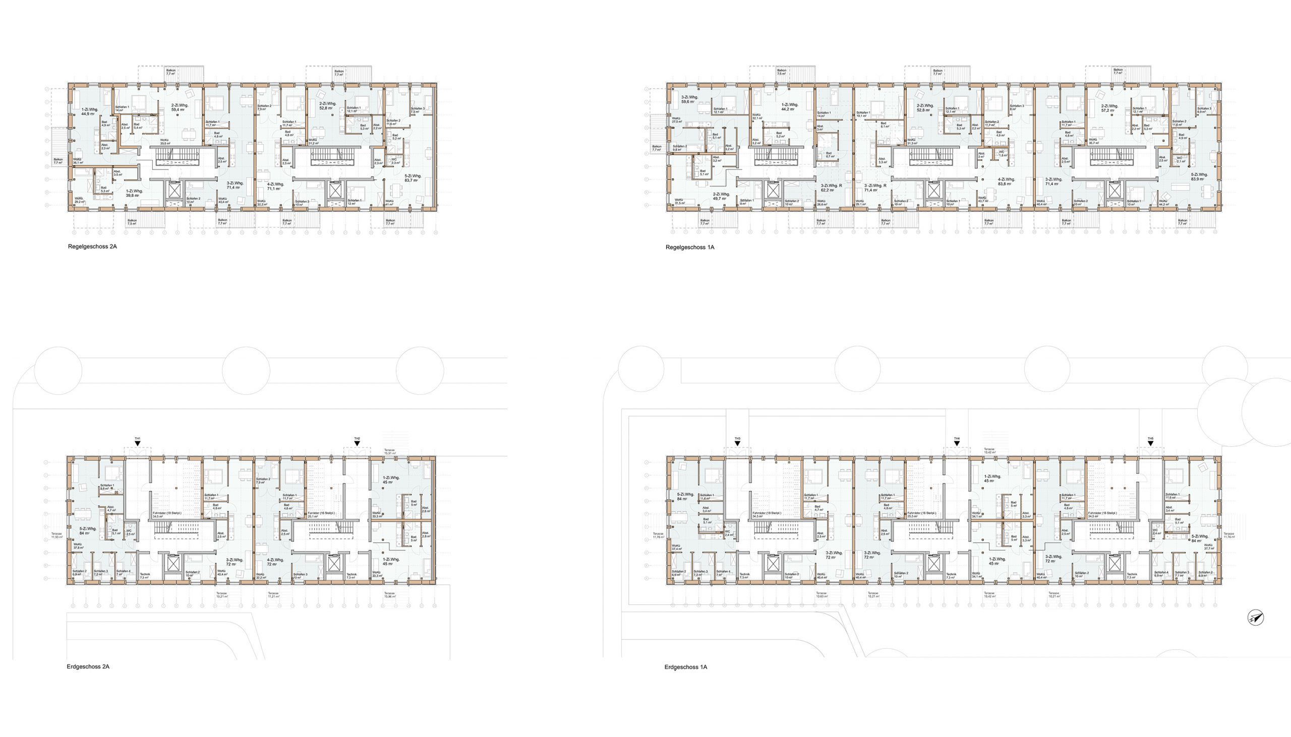
In den laut Bebauungsplan vorgegebenen zwei Baufeldern werden zwei fünfgeschossige Baukörper mit insgesamt 80 Wohnungen geplant.
Die kompakte und wirtschaftliche Grundrissorganisation basiert auf einem modularen Holz-Systembauprinzip. Es werden 5 sehr ähnliche Gebäudeabschnitte mit zentralen, hellen Treppenräumen vorgeschlagen, jeweils auch mit identischen Regelgeschossen und abweichenden Erdgeschossen.

Großzügige Foyers, gemeinschaftlich genutzte Fahrradräume und klar strukturierte Zugänge fördern Orientierung und Nachbarschaft.

Alle Wohnungen verfügen über Balkone und sind barrierefrei zugänglich; optional ist eine rollstuhlgerechte Ausstattung möglich. Der Wohnungsmix entspricht dem vorgegebenen Schlüssel und bietet gut belichtete, zweiseitig belüftete 3- und 4-Zimmer-Wohnungen sowie kompakte 1-Zimmer-Apartments mit optional abtrennbarem Schlafbereich.

Die Gebäude werden in modularer Holzsystembauweise errichtet, mit lasierten Holzfassaden und vorgestellten Balkonen. Alle Holzbauteile sind zu 100% recyclingfähig.
 Das Farb- und Materialkonzept orientiert sich an den bestehenden Kasernengebäuden: mit hellockerfarbenen Wandflächen und dunkelroten Fensterrahmen, Gesimsen und Balkongeländern.

Die Dachflächen sind extensiv begrünt und mit PV-Anlagen ausgestattet. Das Projekt erfüllt Anforderungen an Nachhaltigkeit, Flexibilität und Smart-Living – inklusive Vorbereitungen für Energiemanagement, Gebäudeautomation und E-Mobilität.

Datum

08/2025

Tags

Aktuell