Umbau Zufluchtskirche Berlin

Berlin – Beschränkter Realisierungswettbewerb, 2. Preis. Aktivierung des aufgehobenen Kirchengemeinde-Standorts im Rahmen des Stadtumbaus.

 

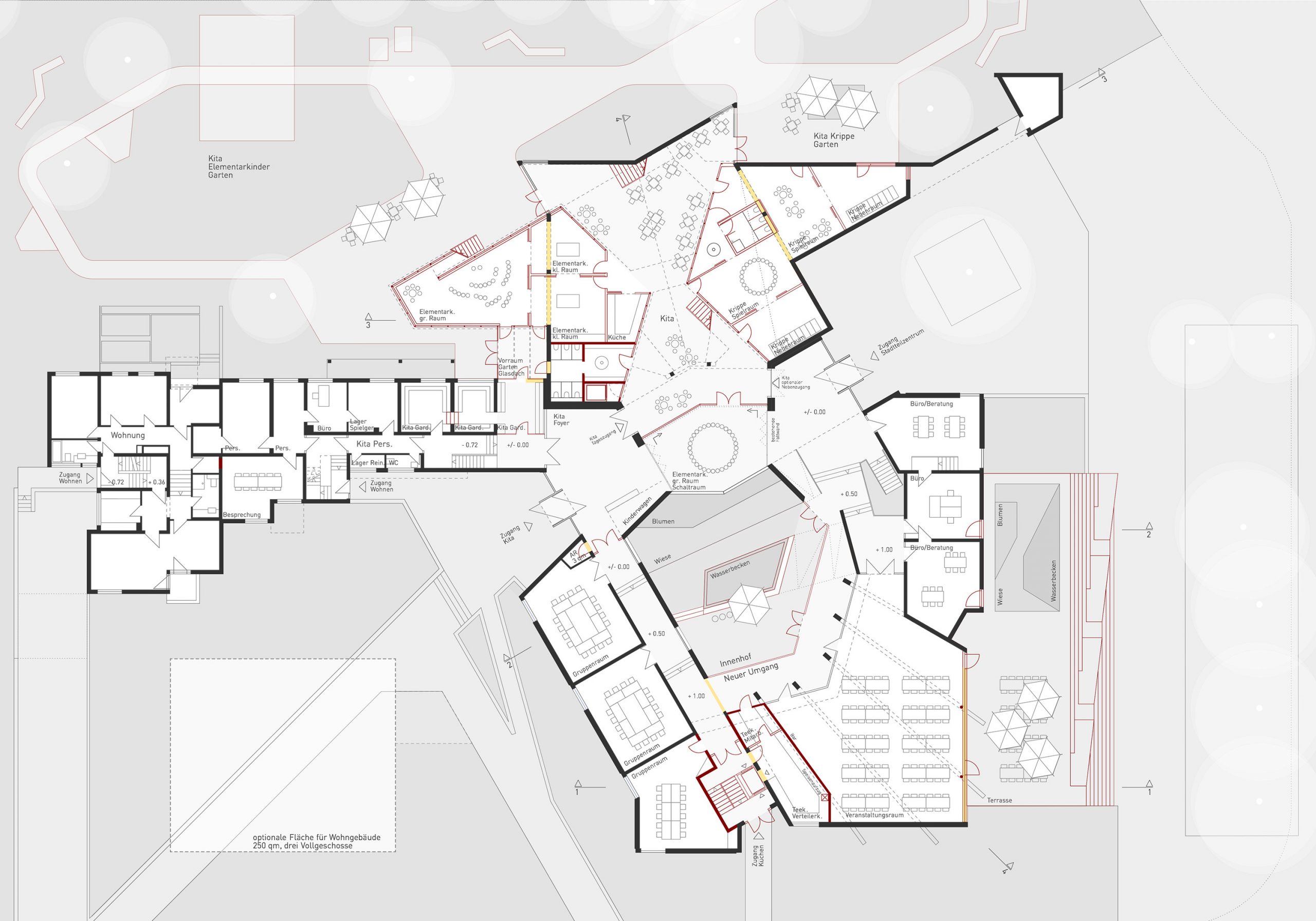
In den 1960er entstand in Berlin-Spandau eine neue Wohnsiedlung für Geflüchtete, mit der Zufluchtskirche von Bodo Fleischer, einer beeindruckende Spannbetonkonstruktion mit markantem Altarwand-Motiv. Heute ist der Bedarf an Kirchenräumen zurückgegangen, gleichzeitig gibt es dort neue Geflüchtete aus dem östlichen Mittelmeerraum. Folglich sollen eine Kindertagesstätte und ein Stadtteilzentrum entstehen. Hier wird eine gruppenoffene Kita mit 100 Kindern in den ehemaligen Kirchenraum eingebaut, Altarwand und Kirchendecke bleiben dabei unberührt. Das ehemalige Gemeindezentrum wird in ein Stadtteilzentrum umgebaut, behält seine Raumstruktur und öffnet sich mit Veranstaltungsraum und Freitreppe auch stark zum neu sanierten Stadtplatz.

Datum

07/2017