Als besonders geschützter Außenbereich liegt der Dementengarten ruhig und südorientiert innerhalb der Gebäudefigur. Er bietet mit einem Rundweg, Sitzbereichen und kleinteiligen Wegen Raum für sichere Bewegung, Orientierung und Aufenthalt im Freien.
Österreich, Mauthausen – Ankauf beim Wettbewerb.
Mit raumzeit Architekten.
Das neue Alten- und Pflegeheim am Ortsrand nutzt die besondere landschaftliche Lage mit ihrer natürlichen Topografie und den weiten Ausblicken optimal aus. Die kompakte und klar gegliederte Bauweise fügt sich behutsam in die Umgebung ein und ermöglicht eine hohe Aufenthaltsqualität für Bewohner:innen, Besucher:innen und Personal. Die differenziert gestalteten Außenräume sowie die übersichtlich strukturierten Wohngruppen schaffen eine wohnliche Atmosphäre, die sowohl Geborgenheit als auch Orientierung bietet. Neben den Pflege- und Gemeinschaftsbereichen stehen großzügige Gartenflächen, ein geschützter Dementenbereich sowie öffentliche Einrichtungen wie Cafeteria, Friseur oder Gymnastikraum zur Verfügung. Das Gesamtkonzept verbindet funktionale Anforderungen mit hoher architektonischer und landschaftlicher Qualität und schafft so einen Ort der Ruhe, Begegnung und Würde im Alter.
Grundriss EG
GEBÄUDEKONZEPT
Im Zentrum der Anlage liegt die Eingangshalle, die als verbindendes Element zwischen Vorplatz und Garten fungiert. Von hier aus sind alle öffentlich zugänglichen Funktionen wie Cafeteria, Andachtsraum, Gymnastikraum oder Friseur gut erreichbar. Eine vorgelagerte, geschützte Terrasse erweitert die Innenräume bei schönem Wetter in den Außenraum.
Grundriss 1OG
WOHNGRUPPEN
Das Heim ist in sechs übersichtliche Wohnbereiche mit je zwei Gruppen gegliedert, drei davon im Alten- und Pflegebereich, einer im Demenzbereich. Die Struktur der Gruppen ist einheitlich, bietet aber individuelle räumliche Identität. Großzügige Aufenthaltsbereiche, Orientierung zum Garten und separate Loggien mit Ausblicken sorgen für ein wohnliches, offenes Raumgefühl.
Grundriss UG
DEMENZBEREICH
Der Demenzbereich ist als abgeschlossener, gut orientierbarer Lebensraum mit direktem Außenbezug gestaltet. Zwei Gruppen sind bewusst miteinander verbunden, um mehr Bewegungsfreiheit zu ermöglichen. Die Wegeführung vermeidet Sackgassen und leitet die Bewohner immer wieder zurück ins zentrale Tageszentrum.
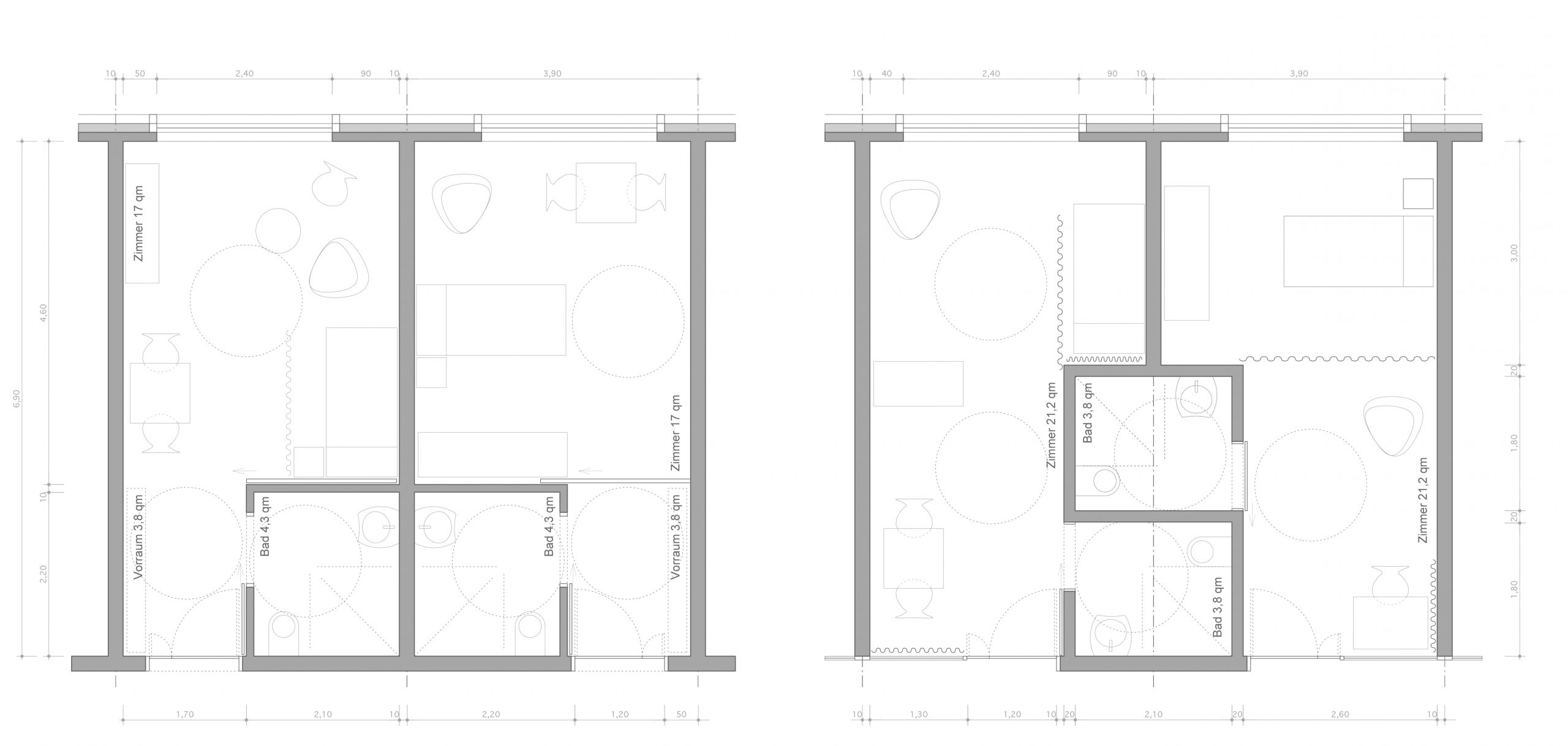
Grundriss Bewohnerzimmer: Typ „Standard“ und Typ „Kommunikation“
BEWOHNERZIMMER
Die Bewohnerzimmer sind funktional durchdacht und in zwei Varianten verfügbar: ein Standardtyp sowie ein kommunikativer Zimmertyp mit optionalem Blickkontakt zum Gang. Alle Zimmer ermöglichen einen Ausblick ins Freie – dank niedriger Parapethöhen sogar im Liegen. Neben Einzel- und Doppelzimmern gibt es auch Einheiten für die Kurzzeitpflege.
Ansicht von Süden und Schnitt
GARTEN
Die differenzierte Gartenanlage nutzt das natürliche Gefälle, um zwei getrennte Bereiche zu schaffen: einen Bewohnergarten und einen geschützten Dementengarten. Beide bieten vielfältige Aufenthaltsmöglichkeiten – von sonnigen Wiesen bis zu schattigen Sitzplätzen. Die Wegeführung ermöglicht sowohl Bewegung als auch Rückzug, und das Gärtnern wird als aktivierende Tätigkeit unterstützt.
Blick von Südwesten mit Dementengarten
DEMENTENGARTEN
Als besonders geschützter Außenbereich liegt der Dementengarten ruhig und südorientiert innerhalb der Gebäudefigur. Er bietet mit einem Rundweg, Sitzbereichen und kleinteiligen Wegen Raum für sichere Bewegung, Orientierung und Aufenthalt im Freien.
