Duisburg – Neubau eines „Community Centers“.
Mit Franz Stinner Architekten (LPH6+7) und Vervoorts & Schindler Architekten (LPH8).
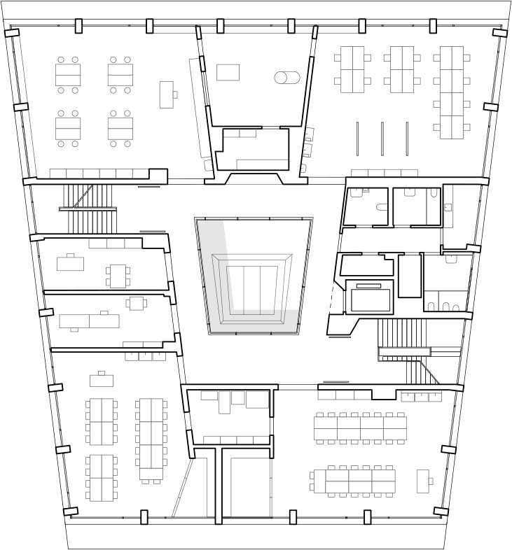
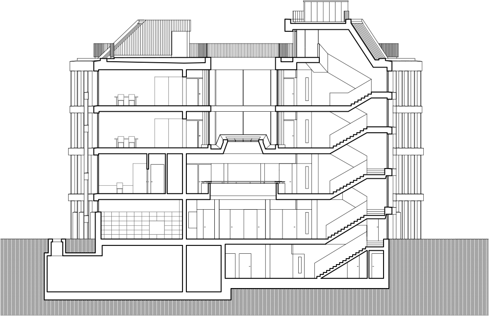
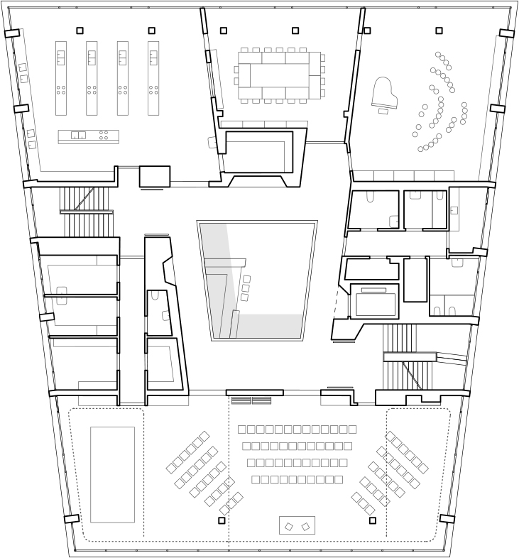
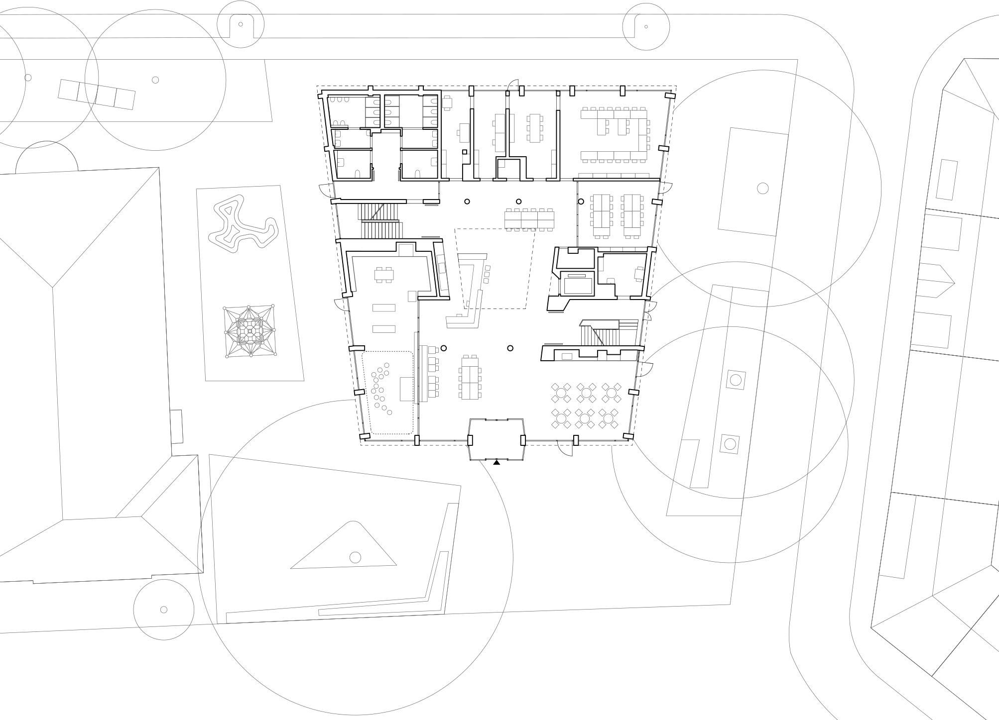
In Marxloh, dem „Ankommensstadtteil“ von Duisburg, gleich neben den weiterhin aktiven Hochöfen, wird im Herbst 2025 ein einzigartiges Bildungsprojekt eröffnet. In einem aufwendigen Beteiligungsverfahren wurde das Programm für einen außerschulischer Lern-, Bildungs- und Qualifizierungsstandort neben der bestehenden Schule definiert: das Comminuity-Center soll Schule und Nachbarschaft mit vielfältigen Angeboten stärken. Das viergeschossige, kompakte Gebäude orientiert sich in der Gebäudehöhe der Bestandsgebäude und dem großartigen Baumbestand. Die architektonische Gestaltung der Fassade drückt Offenheit und Vielfalt aus, aber auch Robustheit, einfache Benutzbarkeit und Flexibilität. Die verwendeten Fassadenmaterialien – Glasfaserbetonelemente und Holz-Alu-Fenster in starken Rot-Tönen – vermitteln Signalwirkung und emotionale Zugänglichkeit. Gleichzeitig wird damit an Materialien aus der Nachbarschaft angeknüpft: dunkelrote Backsteinfassaden, rötlich braune Dächer, viele Industriebauten mit Metallfassaden, Die Transparenz der Fassade unterstützt den Bezug zwischen dem Stadtraum und diesem öffentlichen Gebäude. Innen sammeln sich vielfältige Raumangebote rund um eine zentrale zweigeschossige Halle mit Glasdach, nämlich: ein Mehrzweckraum, Seminarräume, Werkstätten, eine Lehrküche, dazu ein Foyer mit Lernräumen, Café und eine barrierefrei zugänglicher Dachgarten. Das Gebäude ist niedrigschwellig zugänglich, die innere Vielfalt wird nach außen vermittelt.
Jan Läufer
Yvonne Fandke
Gökce Koray
Esen Yildirim
Nour Alasfari
Juliette Delaplace
Pelin Eroglu
Romea Gabriel
Rieke Grundt
Leonhard Kaiser
Ingo Naegle
Elise Schreck
Christopher Schmidpeter
Jette Splawski
Nina Thieme
Yigit Yilmaz
